Bezymyanka Residents Vote to Exit Samara High-Rise Development Project

Residents of Samara shared how the Comprehensive Development of Territories (KRT) is progressing in the Industrial District. Almost two years have passed since the agreement with the developer was signed, but visible changes are yet to be seen. However, passions over the project are running high. Ordinary citizens are convinced their rights are being infringed. In this article, we provide the details.

Underestimated the Cost of Housing?

The essence of KRT is that officials select areas with old dilapidated houses and put them up for auction. The company that wins the auction must resettle the block and demolish the old housing. In return, the firm gets the opportunity to develop the area with new buildings. As authorities explained, comprehensive development is needed to save Samara from spot development.

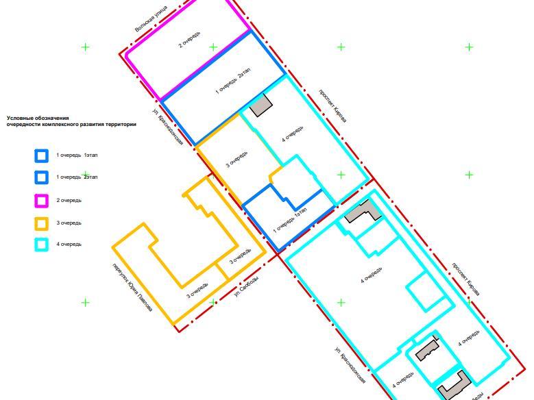
Back in summer 2023, officials announced plans to develop three blocks with a total area of more than 16 hectares near the «Viva Land» shopping center. The largest plot is within the boundaries of Volskaya, Svoboda, Krasnodonskaya streets and Kirov Avenue. Its area is 7.69 hectares.

The second site occupies 7.14 hectares. It is located within the boundaries of Svoboda, Pobeda, Krasnodonskaya streets and Kirov Avenue. And the last site — only 2.09 hectares within the boundaries of Yuri Pavlov Lane, Svoboda and Krasnodonskaya streets.

For a long time, there were no takers willing to obtain a KRT agreement. Only in April 2024 did the city hall publish a document on concluding an agreement with LLC «Technical Customer »PARITET«». The company received all three plots. The firm was given 7 years to implement the KRT.

LLC «Technical Customer »PARITET«» was registered in 2011 in Tyumen. 45% of the company belongs to Sergey Vitalyevich Medvedev, who also owns a share in LLC «Vinzelinsky Plant of Ceramic Wall Materials», 40% — to Pavel Galkin, 15% — to Denis Zhalnin. These same businessmen are co-owners of 10 other Tyumen construction companies. In August 2024, it became known that the founders decided to split the business.

Local residents were presented with the fact that they would have to part with their homes, but not for free — for monetary compensation. However, residents did not agree with the proposed conditions, considering the compensation amount underestimated. The thing is, in the block within the boundaries of Pobeda, Krasnodonskaya, Svoboda, and Kirov Avenue, land surveying was not conducted. Accordingly, land plots were not formed, and people could not receive compensation for the land under their houses being seized.
— Compensation for the market value of the land plot seized under KRT, according to expert estimates, constitutes about a third of the total compensation amount. That is, we were deprived of the opportunity to receive a significant part of the compensation, — says the chairperson of house No. 19 on Krasnodonskaya Street, Svetlana Stepanova.
Since then, much has happened. For example, the authority to implement KRT in Samara was transferred to the regional level — to the Ministry of Urban Development Policy. However, the agreement with «PARITET» became one of the few KRT projects remaining under the city«s jurisdiction. This is because the agreement was concluded before the transfer of authority, and the city hall is listed as one of the parties.
And in 2025, particularly active citizens filed a lawsuit against the regional authorities. But the litigation is progressing with difficulty. According to the latest data, the court proceedings have already been restarted twice.
What and Where They Plan to Build
As reported by 63.RU in the Samara city hall, out of 711 residential premises located in 43 apartment buildings in the KRT zone, the investor has resettled only 19.
And at the end of 2025, the city hall announced public hearings. The project documentation for territory planning (DTP) was put up for discussion. Then, sketches of the planned district appeared.
According to the project documentation for territory planning, instead of the old housing, residential buildings up to 97.5 meters high are permitted to be built in these blocks. This, depending on floor height, is from 25 to 32 floors.
The total area of residential development buildings, according to the administration«s forecast, will be 315,212 sq. m. These houses are planned to accommodate 4,683 residents. For 10% of the future block»s population, there will be 30 sq. m per person, for the remaining 90% — 40 sq. m per person. Only 2,265 parking spaces will be arranged.
Kindergarten No. 131 fell into the KRT zone. It will be preserved. In addition to it, a kindergarten for 240 places should be built. Across the road, a school for 900 places will appear. Its territory will occupy most of the block within the boundaries of Kirov, Krasnodonskaya, Pobeda, and Svoboda. The project also includes the organization of an institution for additional education for children with 211 places.
Moreover, two existing clinics will remain in the KRT zone: a children«s clinic and a dental clinic. The project also includes 3 pharmacies, shops, catering establishments, premises for fitness and health activities, and 15 garbage containers.
The first phase of the project is divided into 2 stages (by the second quarter of 2028). In the first stage, the plot at the corner of Svoboda and Krasnodonskaya streets will be developed. In the second stage, residential buildings will be erected on the territory between Krasnodonskaya Street and Kirov Avenue.
The second phase also includes high-rise development. By the second quarter of 2029, multi-story buildings will rise within the boundaries of Volskaya, Krasnodonskaya, an internal driveway, and Kirov Avenue.
Within the framework of the third phase of KRT, a kindergarten for 240 places will be built, and high-rises will be built along Svoboda Street and Yuri Pavlov Lane. The maximum deadline — by the first quarter of 2030.
And finally, the fourth phase — this includes the design and construction of a school for 900 places and the development of high-rises on the remaining plots. These works should be completed by the first quarter of 2031.
The city administration published the discussion results on January 15. In total, 34 people participated in the public hearings, 33 of whom expressed a negative opinion.
«Our House Is »Punished« for Disagreeing with the City Hall»
According to the published documents, land surveying was indeed conducted within the boundaries of Pobeda, Krasnodonskaya, Svoboda streets and Kirov Avenue. However, residents of house No. 19 on Krasnodonskaya still have questions:
— Our plot still hasn«t been registered in the cadastre! And this is fundamentally important. According to Article 16 of Federal Law FZ-189, only after registration in the cadastre do owners of residential premises become owners of the land plot related to the house. According to the new project, our house — is the only one still hanging in the air, — reported the house chairperson Svetlana Stepanova.
According to the city hall, the formed land plots under apartment buildings have mostly been registered in the state cadastre. Now, the remaining plots are being registered. But residents of the house insist that during land surveying, their courtyard size was intentionally cut in half.
— They openly told us that our house is «punished» for disagreeing with the city hall«s decisions. We filed a lawsuit against the head of Samara and the administration. We believe that until the court decides on our case, it is unacceptable to approve the DTP (detailed territory plan — Ed.), since the contested land surveying is the basis of the new documentation put up for public discussion, — reported the house chairperson Svetlana Stepanova.
According to data from the court website, at the last hearing, the litigation was suspended for the duration of an examination.
Nevertheless, in the Samara city hall, a correspondent from 63.RU was told that the boundaries and size of the land plots where house No. 19 is located were determined «taking into account an on-site survey of the territory and with the participation of the house residents themselves.» And determined «taking into account the actual land use and existing objects on the ground.»
Dissatisfied residents of the house, on the eve of the completion of public discussions, held a meeting of owners and made a decision to withdraw from KRT, using their right to exclude the house from the KRT zone until the territory planning documentation is approved.
In the Samara city hall, in response to a request from 63.RU, it was confirmed that the exclusion of a house from the KRT decision until the day of DTP approval is provided for by Article 67 of the Russian Urban Planning Code.
— The meeting was conducted in compliance with all legal requirements. Notification of the owners« decision and a request to exclude the house from KRT were sent to the city head on January 4. House residents, for their part, made maximum efforts to resolve the resettlement situation within the KRT framework out of court, taking into account the interests of all parties. But they still haven»t heard us, — says the house chairperson Svetlana Stepanova.
The meeting minutes along with the appeal were submitted to the Samara administration on January 12. For now, the documents are under consideration, and a decision on them has not yet been made.





